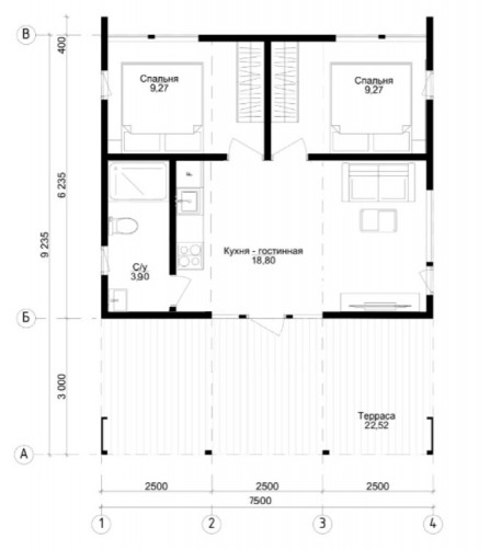
МН 1.45 – это современный модульный дом площадью 45 м², который идеально подходит для круглогодичного проживания, загородного отдыха или организации глэмпинга. Просторная планировка и продуманные детали делают этот проект оптимальным выбором для тех, кто ценит комфорт и функциональность в компактных размерах.
Выбор местоположения
Мы свяжемся с Вами в течение дня.