Этерна №494

Цена строительства от 6 000 000 ₽* * Стоимость не является окончательной
Заявка на консультацию
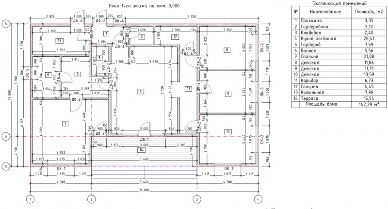
  • Общая площадь 142 м2
  • Длина 16.1 м
  • Ширина 10 м
  • Количество этажей 1
  • Подвал Нет
  • Мансарда без мансарды
  • Гараж Нет
  • Терраса Да
  • Проживание Круглогодичное
  • Количество комнат 4
  • Количество спален 3
  • Количество санузлов 2
  • Вид проекта дом
  • Застройщик МоноЛит
  • Отделка фасада Комбинированная
  • Крыша Вальмовая
  • Можно купить домокомплект Да
  • Модульный тип строения Нет
Планировки
Описание проекта
  • Дом «Этерна» площадью 150 м² — это гармоничное сочетание эстетики, функциональности и энергоэффективности. Проект создан для тех, кто ценит простор, естественное освещение и продуманную организацию пространства. Благодаря использованию СИП-панелей дом отличается быстрыми сроками возведения, экологичностью и высокими теплоизоляционными свойствами.

Планировочные решения:

  • 4 просторные комнаты:
  • Хозяйская спальня с выходом на террасу и собственной гардеробной.
  • Две дополнительные спальни (или детская и кабинет) с гардеробными.
  • Гостиная-столовая, объединенная с кухней в единое светлое пространство.
  • Санузлы:
  • Современный санузел в хозяйской зоне.
  • Гостевой санузел с удобным доступом из общих зон.

Дополнительные помещения:

  • 3 гардеробные (включая прихожую и спальни).
  • Изолированное техническое помещение для коммуникаций и оборудования.
  • Большая терраса (20–25 м²) с выходами из гостиной и хозяйской спальни — идеальное место для отдыха и приема гостей.

Архитектурные особенности:

  • Четырёхскатная крыша: Придает дому элегантный внешний вид, обеспечивает устойчивость к ветровым и снеговым нагрузкам. Возможна интеграция мансардных окон для дополнительного света.
  • Панорамное остекление: Большие окна в гостиной и спальнях наполняют интерьер естественным светом, создавая эффект единства с природой.
  • Минималистичный фасад: Четкие линии, нейтральная цветовая гамма и сочетание материалов (дерево, штукатурка) подчеркивают современный стиль.

Преимущества технологии СИП:

  • Энергоэффективность: Стены из СИП-панелей сохраняют тепло зимой и прохладу летом, сокращая расходы на отопление и кондиционирование.
  • Скорость строительства: Монтаж коробки дома занимает 2–3 недели.
  • Экологичность: Безопасные материалы и отсутствие «мокрых» процессов.
  • Прочность: Конструкция устойчива к деформациям и сейсмическим воздействиям.

«Этерна» — это дом для жизни, где каждая деталь продумана: от удобных гардеробных до просторной террасы, которая становится продолжением интерьера. Проект идеален для семьи, ценящей современный дизайн, практичность и уют. Благодаря СИП-технологии вы получите надежное жилье, готовое к заселению в кратчайшие сроки.

Дополнительные опции:

  • Варианты отделки (фасадные панели, натуральное дерево).
  • Организация ландшафта и зоны барбекю рядом с террасой.
  • Установка системы «умный дом» для повышенного комфорта.

Стоимость домокомплекта 3412000 рублей

Выбор местоположения

Задать вопрос / написать нам

E-mail: domgis@mail.ru

Мы свяжемся с Вами в течение дня.

Тех. поддержка
Предмет обращения:
Тукущая страница

Мы свяжемся с Вами в течение дня.

Обратный звонок
Обратный звонок
Выберите ваш город
Пожаловаться

Объявление опубликовано.
Изменения сохранены

Период публикации - бессрочный, при условии подтверждения актуальности каждые 50 дней. Уведомления будут отправляться на Вашу электронную почту.

Выберите причину снятия с публикации

Снятые с публикации объявления не участвуют в поиске и недоступны для подробного просмотра.

Для повторной публикации нажмите «Вернуть в публикацию»