Сорено №492

Цена строительства от 4 600 000 ₽* * Стоимость не является окончательной
Заявка на консультацию
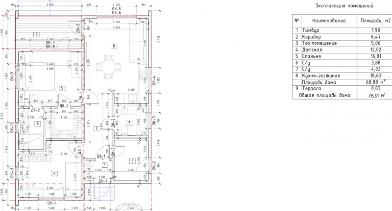
  • Общая площадь 77 м2
  • Длина 11.125 м
  • Ширина 8.2 м
  • Количество этажей 1
  • Подвал Нет
  • Мансарда без мансарды
  • Гараж Нет
  • Терраса Да
  • Проживание Круглогодичное
  • Количество комнат 3
  • Количество спален 2
  • Количество санузлов 2
  • Вид проекта дом
  • Застройщик МоноЛит
  • Архитектурный стиль Барнхаус
  • Крыша Двускатная
  • Можно купить домокомплект Да
  • Модульный тип строения Нет
Планировки
Описание проекта

Дом "Сорено" воплощает современный подход к загородной жизни, сочетая функциональность, простор и уют. Архитектура вдохновлена натуральными материалами и лаконичными формами, с акцентом на высокие потолки под коньком двускатной крыши, создающие ощущение свободы и простора. Большие панорамные окна наполняют интерьеры естественным светом, а деревянные балки и каменные акценты добавляют тепла и текстуры.

Планировочные особенности:

1. Хозяйская спальня с приватной зоной

  •  Просторная спальня с выходом на террасу, где можно насладиться утренним кофе или вечерним закатом.
  •  Собственная ванная комната с душевой кабиной и отдельным туалетом, оформленная в нейтральных тонах с натуральной плиткой.
  •  Вместительная гардеробная с системой хранения премиум-класса, интегрированная в дизайн спальни.

2. Вторая спальня

  •  Уютное помещение для гостей или членов семьи, с возможностью размещения полноценной кровати и рабочей зоны.
  •  Доступ к общему санузлу, расположенному в центральной части дома для удобства.

3. Сердце дома — кухня-гостиная

  •  Просторное открытое пространство, объединяющее кухню с островной зоной, столовую и зону отдыха.
  •  Современная техника, панорамное остекление и продуманное освещение подчеркивают стиль и функциональность.
  •  Прямой выход в сад или во внутренний двор через французские окна.

4. Дополнительные помещения

  •  Гостевой санузел: расположен рядом с гостиной и второй спальней, отделан в едином с домом стиле.
  •  Терраса: просторная площадка с навесом, доступная напрямую из хозяйской спальни. Идеальное место для отдыха на свежем воздухе или летних обедов.

5. Архитектурные детали

  •  Высокие потолки (до 5 метров в коньке) с открытыми деревянными балками, создающие эффект воздушности.
  •  Натуральные материалы в отделке: дерево, камень, штукатурка землистых оттенков.
  •  Энергоэффективные решения: тёплый пол, солнечные батареи (опционально), рекуперация воздуха.

Дом "Сорено" идеален для тех, кто ценит приватность, единение с природой и современный дизайн. Каждая деталь продумана для жизни с комфортом, а терраса, гардеробная и два санузла делают его универсальным как для семьи, так и для приёма гостей.

Стоимость домокомплекта 2 560 000 рублей

Вас может заинтересовать
Вас может заинтересовать

Выбор местоположения

Задать вопрос / написать нам

E-mail: domgis@mail.ru

Мы свяжемся с Вами в течение дня.

Тех. поддержка
Предмет обращения:
Тукущая страница

Мы свяжемся с Вами в течение дня.

Обратный звонок
Обратный звонок
Выберите ваш город
Пожаловаться

Объявление опубликовано.
Изменения сохранены

Период публикации - бессрочный, при условии подтверждения актуальности каждые 50 дней. Уведомления будут отправляться на Вашу электронную почту.

Выберите причину снятия с публикации

Снятые с публикации объявления не участвуют в поиске и недоступны для подробного просмотра.

Для повторной публикации нажмите «Вернуть в публикацию»